Projekt:
Eingang
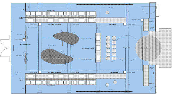
Hands
on Base Gallery, Horniman Museum, RAA UK, London
Galerie
für Kinder mit Objekten zum Ausprobieren aus verschiedenen Kulturen und
Disziplinen
Projekt
Management, Entwurf, Ausschreibung, Konstruktion, Installation
Juni
2001
flexibles, robustes Design
mit modularem Regalsystem, Entdeckungs- Tischen, mobilen Elementen, Bühne
und auswechselbaren Grafiken
Thema:
Beschreibung:
Input:
Eröffnung: